Skip to content

Shoreline MU 70

Shoreline MU 70

  • Home
  • Project Overview
    • Offering Memorandum
    • Zoning Data
    • Area Tabulation
    • Property Highlights
    • Adjacent Projects & Possible Public Works Projects
    • Upcoming Right-of-Way Projects
    • Neighborhood Map
    • City of Shoreline
    • Sound Transit Link Light Rail
  • Our Team
  • Contact

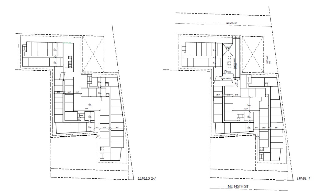
Building Plans & Masses

Share this:

  • Share on X (Opens in new window) X
  • Share on Facebook (Opens in new window) Facebook
Like Loading...
Shoreline MU 70, A WordPress.com Website.
    • Shoreline MU 70
    • Sign up
    • Log in
    • Copy shortlink
    • Report this content
    • Manage subscriptions
 

Loading Comments...
 

    %d